Denah rumah type 36 – Membeli rumah tentunya harus mencari informasi mengenai ukuran rumah yang ingin kita tempati nantinya atau sebelum kamu membeli rumahnya, bisa memilih ukuran yang sesuai dengan kemampuan kamu dalam membeli rumahnya. Misalnya dengan rumah yang mempunyai type 36. Pada saat ini, banyak sekali rumah yang menggunakan type 36 ini, karena harganya yang terjangkau, namun bisa menjadi sebagai rumah idaman.
Apalagi dengan perkembangan zaman pada saat ini, kamu bisa membuat rumah dengan type 36 tersebut terlihat modern dan minimalis. Ada banyak sekali referensi mengenai desain rumah tersebut supaya tampaknya terlihat modern dan trendy pada zaman sekarang.
Sebelum membuat rumah kita menjadi terlihat menarik, tentunya kamu harus memikirkan dahulu bagaimana denah rumahnya supaya nyaman dan aman. Nah, pada pembahasan ini kamu akan mengetahui beberapa contoh denah rumah type 36 yang bisa dijadikan referensi. Langsung saja simak pembahasannya sampai habis ya ! Cek this out !
Contoh denah rumah type 36 subsidi

Denah rumah dengan subsidi dari pemerintah tentunya sama halnya dengan denah rumah pada biasanya. Adanya ruang tamu, ruang keluarga, dapur, kamar mandi, kamar tidur, dan teras rumah. Selain itu, kamu bisa memanfaatkan sisa tanah di halaman depan rumahnya untuk membuat taman mini untuk menanam tanaman hias atau tempat bersantai. Bagaimana menurut kamu ?
Denah rumah skala 1 : 1000

Denah rumah yang mempunyai skala 1 : 1000 ini bisa kamu ikuti. Apalagi jika ingin mendapatkan nuansa rumah yang terlihat luas, kamu bisa membuat rumah dengan skala 1 : 1000. Tampilan dari denahnya juga terlihat rapih, serta pembuatan ruangan yang digunakan juga sesuai dengan fungsinya.
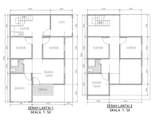
Desain denah rumah skala 1 : 50

Selanjutnya, untuk denah yang memiliki skala 1 : 50, akan lebih terlihat kecil namun minimalis. Karena dengan skala seperti ini kamu juga akan mudah untuk membersihkan rumahnya supaya setiap hari terlihat bersih dan nyaman untuk keluarga. Selain itu, kamu bisa memanfaatkannya lagi untuk membuat 2 lantai di rumah tersebut, lalu membuat ruangan lainnya di atas lantai tersebut agar terlihat minimalis.
Denah rumah type 36 dan tampaknya

Contoh denah rumah type 36 ini melihatkan tampak rumah dari bagian depan. Dengan rumah yang memiliki tampak seperti gambar di atas, tentunya akan membuat rumah kamu terlihat modern. Apalagi dengan adanya garasi dan taman kecil di depan teras rumahnya. Selain itu, kamu tinggal menambahkan pagar rumah supaya terlindungi dari pencurian, serta dapat mempercantik halaman rumahnya. Kamu bisa menggunakan bahan material besi hollow untuk membuat pagar rumahnya.
Model denah rumah dengan 3 kamar

Rumah yang memiliki 3 kamar tentunya bisa dimanfaatkan untuk membuat 1 kamar utama dan 2 kamar untuk anak-anak. Namun, kamu bisa membuatnya lagi seperti 1 kamar utama, 1 kamar anak, dan 1 kamar pembantu/tamu. Dengan adanya 3 kamar seperti ini, tentunya kamu bisa membuat rumahnya menjadi terlihat sempit, namun kamu bisa mengatasinya seperti membuat 3 kamar tersebut di lantai atas.
Denah 2 lantai untuk rumah type 36

Denah rumah yang memiliki 2 lantai tentunya sudah sering kita lihat. Apalagi dengan rumah bertype 36 seperti ini. Sangat cocok untuk membuat rumah yang memiliki 2 lantai, selain itu di dalam rumahnya juga bisa kamu membangun ruangan yang cocok untuk dijadikan tempat bersantai. Seperti ruangan untuk bermain gim, display akuarium, atau tempat menyimpan barang-barang untuk hobi kamu.
Denah rumah untuk 2 kamar minimalis

Agar terlihat minimalis, bisa kamu membuat denah rumahnya yang memiliki 2 kamar saja. Sehingga, kamu bisa memanfaatkan untuk membuat garasi mobil di halaman depan. Lalu, kamu juga bisa memperlebar taman mininya di bagian teras, supaya dapat menanam tanaman hias yang lebih banyak lagi atau kamu bisa memanfaatkan untuk membuat kolam ikan koi agar terlihat segar setiap saat.
Denah type 36 1 lantai

Dan denah terakhir yaitu denah rumah yang memiliki 1 lantai saja. Untuk 1 lantai tentunya sangat cukup bagi kamu yang mempunyai budget pas-pasan. Dengan rumah 1 lantai ini pun kamu bisa membuat 2 kamar tidur, kamar mandi, ruang keluarga, dan dapur. Selain itu, kamu bisa memanfaatkannya untuk membuat garasi dan kebun kecil di area belakang rumah.
Harga rumah dengan type 36 di Jabodetabek
Dengan banyaknya minat kaum milenial hingga kaum z generation yang ingin memiliki rumah, tentunya rumah dengan type 36 ini bisa menjadi pilihan utama. Namun, harganya yang setiap tahun naik akibat dari naiknya harga tanah juga akan mengakibatkan kita untuk berpikir secara matang dalam membeli rumah tersebut. Apalagi banyak konsekuensi yang harus di jalani, namun itu semua demi rumah permanen yang setiap hari, minggu, bulan, dan tahun akan kita tempati selamanya.
Maka dari itu, di lansir dari halaman Kompas.com berikut beberapa harga rumah type 36 di jabodetabek, yaitu :
- Harga rumah type 36 di Jakarta : Rp. 480 juta – Rp. 600 juta.
- Harga rumah type 36 di Bogor : Rp. 270 juta – Rp. 680 juta.
- Harga rumah type 36 di Depok : Rp. 370 juta – Rp. 600 juta.
- Harga rumah dengan type 36 di Tangerang : Rp. 145 juta – Rp. 600 juta.
- Harga rumah di Bekasi type 36 : Rp. 230 juta – Rp. 580 juta.
Harga tersebut bisa menjadi referensi kamu untuk membeli rumahnya. Namun, jangan di jadikan patokan ya ! Karena harganya bisa berbeda di setiap daerah. Selain itu, ada banyak sekali faktor yang menentukan harga rumah tersebut menjadi mahal, seperti akses ke jalan utama yang mudah, tempat yang strategis, dan masih banyak lainnya.
Jadi, itulah beberapa contoh untuk denah rumahnya serta harga dari rumah type 36 tersebut di daerah Jabodetabek. Bagi kamu yang ingin mencari informasi mengenai denah rumah ini, kamu bisa simak pembahasan berikut :
Denah rumah minimalis | Denah rumah type 45 | Denah rumah 6×9 | Denah rumah minimalis 3 kamar
Atau kamu bisa scroll ke bawah mengenai related post yang membahas tentang denah rumah, denah sekolah, denah kost, dan sebagainya.
Kalau kamu ingin buat custom denah rumah juga bisa ! Kamu bisa hubungi tim Mirach Interior melalui WhatsApp atau cek di jasa desain interior. Jangan lupa follow instagram @mirachinterior bagi kamu yang ingin melihat hasil desain ruangan secara 3D yang terlihat nyata atau real.





