Denah rumah 7×12 – Mencari referensi dalam pembuatan rumah dengan ukuran luas tanah 7×12 adalah hal yang mudah, namun harus mempertimbangkan berbagai hal untuk mendapatkan hasil yang maksimal. Selain itu, dengan adanya gambaran dari denah rumah tersebut akan memudahkan tukang atau vendor kontruksi yang akan membangun rumah impian kamu. Lalu, penggunaan denah rumah ini juga berpengaruh dengan memposisikan tata letak dari seluruh ruangan yang ada di dalam rumah, tak hanya ruangan saja tetapi untuk letak barang interior juga sangat diutamakan.
Sudah menjadi ciri khas ketika kita ingin membuat bangunan rumah dengan tampak yang minimalis dan modern, sehingga denah rumah ini bisa mendukung hal tersebut sesuai dengan apa yang kita inginkan. Namun, bagaimana denah rumah 7×12 yang cocok untuk digunakan pada rumah impian kamu ? Berikut beberapa desain denah rumahnya yang bisa kamu jadikan referensi, yaitu :
Denah untuk rumah 1 lantai

Kalau kamu tidak ingin membangun rumah 2 lantai, tentu dengan luas tanah sekitar 7×12 kamu bisa cukup dengan rumah yang hanya 1 lantai saja. Kamu bisa memanfaatkan seluruh ukuran luas tanahnya untuk membuat ruangan yang ada di dalam rumah seperti pada umumnya, yaitu kamar tidur, dapur, kamar mandi, ruang tamu, dan ruang keluarga. Namun, jika ada sisa luas tanahnya, kamu bisa membuat garasi atau kebun kecil yang berada di area rumahnya.
Denah yang menggunakan 2 kamar tidur

Biasanya dengan membuat 2 kamar tidur di dalam bangunan rumah, tentunya harus disesuaikan dahulu dengan kebutuhan yang kamu inginkan. Seperti untuk kamar tidur utama dan kamar tidur anak. Nantinya, sisa dari luas tanahnya bisa kamu buat untuk membanguna garasi, taman mini, dan teras kecil. Tetapi, kamu harus merelakan dengan tidak membuat ruangan tamu, alternatifnya adalah nanti tamu yang berkunjung ke rumah kamu bisa duduk atau bersantai di teras atau ruang keluarga.
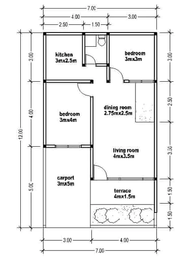
Denah rumah 7×12 3 kamar tidur

Perbedaan lainnya dengan denah rumah yang menggunakan 3 kamar tidur, biasanya tidak ada garasi di halaman rumahnya. Tetapi, bisa dimanfaatkan untuk membangun teras kecil di depan ruang tamu. Lalu, di dalam bangunan rumahnya bisa kamu buat seperti ruangan keluarga, ruang makan, dapur, kamar mandi, dan ruang tamu. Untuk penggunaan kamar tidur, kamu bisa membuatnya menjadi 1 kamar tidur utama dan 2 kamar tidur anak. Atau 1 kamar tidur utama dan 1 kamar tidur anak serta 1 kamar tidur tamu/pembantu. Sesuaikan saja dengan apa yang kamu inginkan ya !
Denah rumah dengan 4 kamar tidur

Selanjutnya ada yang menggunakan 4 kamar tidur di dalam satu bangunan rumah. Biasanya dengan menggunakan 4 ruangan kamar tidur ini ada satu kamar tidur khusus untuk pembantu atau tamu. Walaupun luas tanah rumahnya 7×12, kamu bisa saja tidak membangun garasi, teras, atau taman yang berada di area rumahnya. Selain itu, kamu juga hanya mempunyai 1 ruangan keluarga saja, dapur, serta kamar mandi. Bagaimana menurut kamu ?
Denah rumah yang ada garasi

Seperti pembahasan sebelumnya, jika kamu menginginkan pembuatan garasi dan teras rumah di area bangunan rumahnya, kamu bisa membuat 2 kamar tidur saja di dalam rumahnya. Kenapa ? Karena jika terlalu banyak kamar tidur, berakibatkan ukuran tanah untuk membuat garasinya juga tidak pas. Tetapi, bisa saja sih kamu membangun kamar tidur lebih dari 2 namun ukurannya yang kecil. Bagaimana ?
Denah yang simpel

Denah rumah ini terlihat simpel karena langsung menampilkan gambar secara intinya. Dengan adanya ruang keluarga, 2 kamar tidur, kamar mandi, dan dapur tentu membuat denah ini sudah lebih dari cukup untuk gambaran kasarnya. Kalau kamu ingin membuat teras dan garasi, kamu juga bisa menggambarnya di area halaman depan rumah, serta taman kecil yang sesuai jika kamu senang dengan aktifitas berkebun. Apakah kamu tertarik ?
Walaupun dengan gambaran denah seperti ini setiap orang akan mengerti, terutama orang yang sudah lama di bidang kontruksi pembangunan rumah. Tetapi, kita juga harus tahu bagaimana tampilan rumahnya dengan cara yang terlihat seperti aslinya. Nah, kamu bisa memesan jasa desain interior yang khusus untuk 1 ruangan saja. Kamu bisa memesannya melalui WhatsApp yang nantinya akan langsung masuk ke tim desain Mirach Interior.
Tetapi, kalau kamu ingin mencari desain denah rumah yang lainnya, kamu bisa cek pada pembahasan berikut ini :
Denah rumah minimalis | Denah rumah minimalis 3 kamar | Denah rumah sederhana | Denah rumah 9×12
Untuk custom desain ruangannya, kamu bisa cek di instagram @mirachinterior juga ! Lalu, jangan lupa untuk follow instagram kami ya ! Terimakasih.





