Denah rumah 6×10 – Melihat banyaknya fenomena masa kini untuk mempunyai rumah dengan tampilan yang minimalis, tentunya sangat cocok dengan pembahasan mengenai denah rumah 6×10 pada saat ini. Mempunyai ukuran rumah yang mungil, tentunya harus memperlihatkan tampilan rumah yang minimalis dan modern. Selain itu, bisa juga membuat rumah tersebut yang mempunyai 2 lantai dengan 3 kamar yang siap untuk di tempati. Tak hanya itu juga, kamu juga bisa membuat garasi mobil di halaman terasnya loh !
Nah, bagaimana denah rumah 6×10 ini sesuai dengan keinginan dan ekspetasi kita ? Tentunya, kamu harus mencari referensi terbaik untuk pembahasan dengan rumah dengan ukuran 6×10 ini, supaya kamu bisa melihat bayangan untuk rumah masa depan kamu seperti apa. Jadi, kamu bisa simak pembahasan ini sampai habis ya !
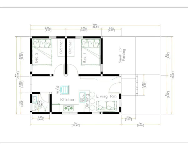
Denah rumah 6×10 1 lantai yang minimalis
Pada model yang pertama, tentunya banyak sekali orang-orang yang ingin mempunyai rumah dengan hanya 1 lantai saja. Karena, biasanya terkendala dengan budget yang dipunya. Namun, jangan khawatir jika kamu ingin membuat rumah dengan 1 lantai saja, sebab bisa kamu manfaatkan beberapa space yang ada di rumah tersebut untuk membuat lahan parkir yang sesuai ukurannya dengan mobil yang kamu miliki.

Serta, kamu juga dapat menambahkan 2 kamar tidur yang siap untuk digunakan supaya kamu dan anak-anak kamu nantinya bisa merasakan kenyamanan ketika berada di rumah tersebut. Selain itu, kamu bisa memberikan beberapa ruangan dengan tampilan yang mengesankan seperti ruang keluarga dan ruang tamu.

Pada umumnya, tentu kita harus mempunyai ruang dapur dan kamar mandi di dalam rumah karena itu adalah tempat yang sangat penting dan wajib ada. Kalau ada space lebih di halaman teras depan, kamu bisa membuat kebun minimalis di samping garasi mobilnya yang menghadap langsung ke pintu masuk utama rumah kamu.
Ukuran 6×10 untuk 2 lantai terlihat megah
Nah, kalau kamu ingin membuat rumah kamu berlantai 2, kamu bisa mencoba denah rumah 6×10 2 lantai loh. Untuk bagian lantai 1, kamu bisa memberikan beberapa ruangan khsusus seperti ruang tamu, tempat tidur utama, dapur, dan kamar mandi. Serta, juga bisa memberikan ruangan untuk keluarga, tamu, dan tempat makan. Dan jika ada space yang lebih untuk pembuatan garasi mobil, tentunya kamu bisa membuatnya di halaman rumah bagian depan.

Membuat kebun mini juga bisa kamu lakukan untuk lantai 1 seperti ini. Dan penambahan kebun mini juga berfungsi agar rumah kamu tidak terlihat kering dan usang, melainkan akan menghasilkan tampilan yang fresh dan segar.

Kalau untuk bagian lantai atasnya atau lantai 2, kamu bisa membuat ruang kamar tidur, dapur, kamar mandi, dan tempat bersantai. Kalau ada space lebih lagi, juga bisa kamu tambahkan untuk membuat balkon supaya dapat melihat pemandangan dari lantai atas rumah.
Denah 6×10 dengan 3 kamar untuk rumah
Kamu juga bisa membuat 3 kamar untuk rumah ukuran 6×10 loh ! Sehingga, rumah kamu akan terlihat modern dengan beberapa kamar yang menarik perhatian. Kamu bisa membuat kamar tersebut berfungsi untuk orang-orang yang dekat dengan kamu ketika ingin menginap di rumah. Seperti untuk kamar utama untuk diri kamu sendiri, kamar kedua untuk anak-anak kamu, dan kamar ketiga bisa kamu fungsikan untuk kamar tamu.

Selain itu, tak hanya menambahkan 3 kamar tidur saja, namun bisa kamu tambahkan juga ruangan lainnya. Seperti, ruangan keluarga, ruang tamu, dan dapur.

Kalau kamu ingin memberikan kesan yang lebih modern lagi, bisa kamu tambahkan garasi di halaman depan bagian rumah kamu. Sama saja seperti model denah yang lainnya, bahwasannya yang terpenting yaitu ruang dapur, kamar mandi, dan ruang kamar tidur.
Pembuatan denah rumah di Mirach Interior ?
Jika kamu bertanya-tanya bagaimana di Mirach Interior bisa membuat denah rumah dengan tampilan yang realitstic dan harga yang terjangkau, tentu jawabannya adalah BISA. Dengan desainer profesional, sudah banyak client / customer yang memesan jasa untuk pembuatan denah rumah dengan tampilan 3D. Ya, tampilan 3D saat ini sedang digandrungi oleh orang-orang yang secara umum ingin melihat tampilan rumahnya nanti akan seperti apa. Selain itu, dengan tampilan 3D ini juga dapat mempermudah orang kontruksi atau mandor yang ingin membangun rumah kamu nantinya.

Karena banyaknya pemesanan mengenai desain 3D seperti ini, tentunya di Mirach Interior pun kamu bisa memesan desain untuk barang interior atau furniture yang ingin kamu miliki. Seperti pembuatan kitchen set, meja dapur, jendela dapur, lemari pakaian, dan sebagainya. Kamu bisa cek langsung di jasa desain interior oleh Mirach Interior. Sedangkan, untuk mencari sumber referensi lainnya mengenai denah rumah seperti ini, kamu bisa cek selengkapnya di denah rumah minimalis atau denah rumah sederhana.
Informasi dan desain 3D menarik lainnya, bisa kamu cek di instagram @mirachinterior atau langsung hubungi kami melalui WhatsApp yang sudah disediakan. Terimakasih.





