Denah rumah minimalis 3 kamar ukuran 7×9 – Mempunyai rumah minimalis menjadi idaman untuk setiap orang, apalagi dengan ukuran 7×9 yang ukurannya lumayan lebih besar dan tidak terlalu kecil. Sehingga, di dalam bangunan rumahnya nanti bisa di buat sebuah ruangan tambahan seperti 3 kamar tidur, 1 mushola, dan sebagainya. Selain itu, kamu juga bisa memberikan garasi untuk kendaraan nantinya agar terlihat rapih dan modern. Tetapi, kita harus membutuhkan denah rumah yang pas dan sesuai apa yang kita inginkan,
Pada pembahasan ini khususnya untuk mendapatkan informasi mengenai gambaran denah rumah minimalis 3 kamar ukuran 7×9 yang sangat cocok untuk di perumahan atau di perkampungan. Lalu, di dalam denah ini juga ada rumah yang 1 lantai hingga 2 lantai. Ada banyak lagi gambaran mengenai denah rumah minimalis ini, jadi kalau kamu penasaran bisa simak pembahasan berikut sampai habis ya ! Let’s go !
Desain denah rumah minimalis 3 kamar ukuran 7×9

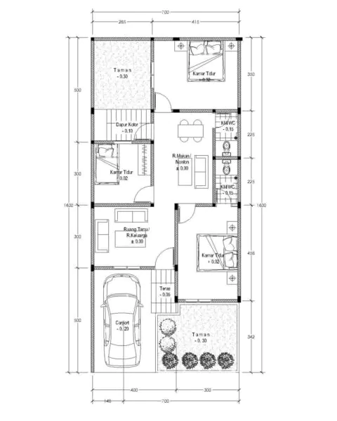
Desain pertama mengenai denah rumah minimalis ini mempunyai 3 kamar tidur dengan ukuran rumah sekitar 7×9. Tentunya dengan rumah berukuran seperti ini, kamu bisa menambahkan 3 kamar sekaligus di dalam bangunannya. Selain itu, supaya terlihat rapih, kamu bisa membuat dekorasi kamar aesthetic untuk kamar tidur anak, sedangkan untuk kamar tidur utama bisa kamu buat dekorasi kamar minimalis loh ! Pastinya kamu penasarankan dengan hasil kamarnya nanti ? hehe..
Contoh denah rumah minimalis 3 kamar ukuran 7×9

Desain yang kedua menampilkan sebuah denah dengan nuansa yang minimalis dan simpel. Di ukuran 7×9 ini, kamu bisa membuat berbagai macam ruangan yang ada di dalam bangunan rumahnya nanti. Namun, secara umumnya kamu harus membangun ruangan seperti ruang tamu, ruang keluarga, dapur, kamar mandi, dan kamar tidur. Ruangan tersebut adalah ruangan primary yang memang harus ada di dalam rumah, kecuali ruang makan, ruang bersantai, dan sebagainya.
Denah rumah minimalis 3 kamar di perumahan ukuran 7×9

Denah untuk di perumahan tentunya sangat berbeda dengan denah yang ada di perkampungan. Denah rumah minimalis di perumahan seperti ini bisa menjadi pilihan tepat dan menarik. Selain itu, pasti tampilan rumahnya yang modern menjadi daya tarik sendiri. Sehingga, di dalam rumahnya nanti bisa membuat 3 kamar sekaligus karena bangunan rumahnya yang berukuran 7×9. Jadi, sangat cocok untuk membuat 3 kamar di rumah yang berada pada perumahan. Apakah kamu tertarik ?
Denah rumah minimalis 3 kamar dan mushola ukuran 7×9

Selanjutnya untuk kamu yang ingin menambahkan ruangan untuk beribadah di rumah ukuran 7×9. Denah ini sangat cocok untuk digunakan. Denah rumah minimalis seperti contoh di atas, bisa kamu ikuti. Namun, denah ini untuk rumah berlantai 2 nantinya, tapi jangan khawatir kamu bisa menggunakan di bagian denah 1 lantai saja dan membuat sekat-sekat antara ruangan satu serta yang lainnya supaya dapat menambahkan 3 kamar di dalam bangunan rumahnya tersebut.
Adanya garasi di denah rumah 3 kamar ukuran 7×9

Lalu ada juga denah rumah yang membutuhkan garasi di halaman depan rumahnya supaya kendaraan juga aman terhadap pencurian. Tak hanya itu juga, kendaraan pun akan tertata dengan rapih, serta kamu harus mengikhlaskan dengan ukuran di beberapa ruangan yang ada di dalam rumah terlihat kecil atau sempit. Tapi dengan ukuran rumah 7×9, kamu bisa melebarkan bangunan rumahnya ke arah samping atau ke arah belakang. Jadi, kamu tidak perlu khawatir dengan masalah seperti ini karena bisa di atasi dengan cepat.
Tampilan 3D untuk sebuah denah rumah minimalis 3 kamar di ukuran 7×9

Salah satu daya tarik mengenai penggambaran denah rumah adalah tampilan 3D. Pada saat ini desain rumah 3D menjadi pilihan tepat supaya dapat melihat gambaran rumah kamu nantinya akan seperti apa. Dengan denah rumah 3D seperti ini, kamu harus mengeluarkan budget yang lumayan mahal, sekitar 4 juta hingga 10 juta rupiah. Harga tersebut sebanding dengan hasil desain secara real dan detailing yang sangat teliti. Bagaimana menurut kamu ? Apakah dengan harga segitu sudah worth it ?
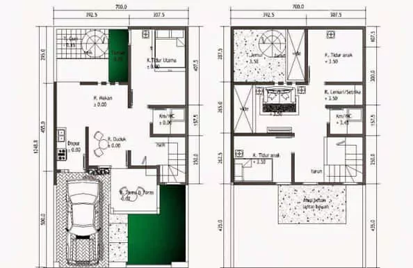
Denah rumah 2 lantai minimalis 3 kamar ukuran 7×9

Ada lagi nih jika menggunakan rumah 2 lantai untuk mendapatkan 3 kamar tidur di dalam bangunan rumahnya. Rumah ukuran 7×9 tentunya bisa di buat untuk menggunakan 3 kamar sekaligus. Kamu bisa membuat 1 kamar tidur utama di bagian lantai 1, sedangkan untuk bagian lantai 2 kamu bisa membuat 2 kamar. Atau kamu bisa posisikan kamar tidur utama dan kamar tidur lainnya sesuai dengan kebutuhan nantinya.
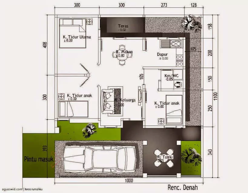
Denah rumah 1 lantai minimalis 3 kamar ukuran 7×9

Dan terakhir, untuk kamu yang ingin membuat rumahnya hanya 1 lantai saja namun ingin memiliki 3 kamar di dalam rumahnya, kamu bisa coba menggunakan contoh denah seperti di atas ini. Dengan denah rumah minimalis ukuran 7×9 tentunya kamu tidak pusing-pusing untuk mengukur ruangan yang akan digunakan pada rumah kamu nantinya, karena dengan rumah ukuran 7×9 seperti ini tanahnya yang luas dan tidak terlihat sempit.
Tentunya dengan rumah berukuran 7×9 ini ada kelebihan dan kekurangannya. Namun, itulah perbedaannya dalam mencari rumah yang idaman dan ideal untuk tempat tinggal kita seumur hidup. Jadi, walaupun rumah kamu saat ini terlihat kecil, berantakan, dan tidak layak untuk dihuni, kamu harus tetap bersyukur masih mempunyai tempat tinggal.
Bagi kamu yang ingin mendapatkan referensi menarik lainnya mengenai denah rumah, kamu bisa simak pada artikel berikut ini :
Denah rumah sederhana | Denah rumah 6×9 | Denah rumah type 36
Kamu juga bisa memesan jasa untuk desain interior atau desain satu rumah dengan harga yang murah dan hasil yang berkualitas. Kamu bisa memesannya melalui jasa desain interior atau hubungi tim desain ke WhatsApp. Follow instagram @mirachinterior juga untuk mendapatkan desain ruangan dan interior secara eksklusif. Terima kasih.





