Denah rumah 9×12 – Mencari desain rumah dengan ukuran yang pas untuk rumah idaman kamu adalah hal yang begitu sulit. Karena, kamu harus mencari ukuran yang sesuai dan pasti untuk membuat 1 ruangan saja yang ada di dalam rumah kamu. Maka dari itu, dibutuhkan denah rumah yang sesuai dengan kebutuhan kamu yang dapat mempermudah dalam membuat bangunan ruangan yang ada di dalam rumah.
Biasanya, untuk membuat ruangan yang ada di dalam rumah tersebut membutuhkan sebuah denah rumah yang sudah paten dan fix tanpa ada perubahan sedikitpun. Selain itu, di dalam denah tersebut bisa kamu manfaatkan dalam membuat beberapa ruangan yang seharusnya ada di dalam rumah seperti biasanya, seperti ruang kamar tidur, ruang tamu, ruang keluarga, dapur, dan kamar mandi. Sisanya, bisa kamu buat untuk menambahkan garasi dan taman mini yang bisa kamu buat di sekeliling rumah idaman kamu.
Karenanya, pada pembahasan kita kali ini akan mencari denah rumah 9×12 yang mungkin cocok untuk kamu jadikan referensi. Jadi, mari kita simak baik-baik ya !
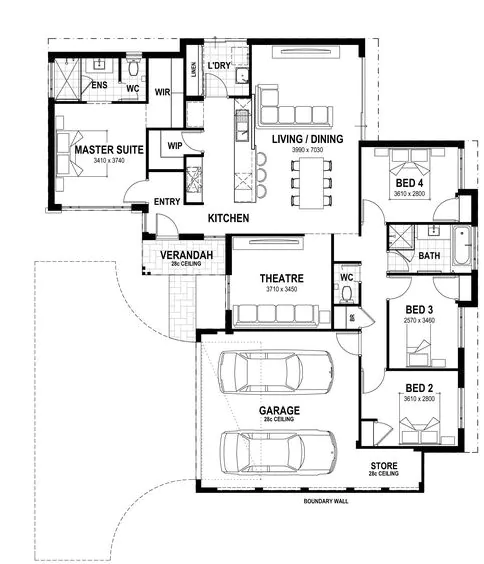
Denah rumah ukuran 9×12 dengan 4 kamar
Mempunyai rumah dengan ukuran 9×12 tentunya terlihat sangat luas dan lega. Nah, kamu bisa memanfaatkannya untuk keperluan membuat ruang kamar yang berjumlah 4 kamar. Ruangan 4 kamar ini terdiri antara kamar tidur dengan kamar mandi. Nah, bagaimana sih denah yang cocok untuk 4 kamar seperti ini, kamu bisa lihat gambarnya di bawah ini, yaitu :
Rumah 9×12 dan 4 kamarnya

4 kamar ini yaitu terdiri dari kamar tidur saja. Namun, untuk kamar mandi bisa dibilang menjadi 5 kamar di dalam satu bangunan rumah ini. Nah, tentunya 4 kamar tersebut bisa kamu manfaatkan untuk membuat 1 kamar utama dan sisanya untuk kamar anak-anak kamu atau untuk kamar tamu. Bisa kamu manfaatkan juga sisa luas bangunannya untuk membuat garasi serta taman mini yang berada di samping rumah tersebut.
Denah 4 kamar yang modern

Dengan memberikan ruangan 4 kamar seperti ini rumah kamu akan terlihat modern loh ! Serta, dengan kamar yang bagus juga menghasilkan pandangan yang menarik perhatian. Dengan membuat 4 kamar tersebut bisa memanfaatkannya untuk tempat beristirahat orang-orang yang sedang berkunjung ke rumah kamu. Apakah kamu tertarik untuk membuatnya ?
Desain rumah 9×12 memanjang ke samping
Biasanya tampilan rumah yang memanjang ke samping ini terlihat luas dan megah. Sangat cocok untuk ukuran 9×12 yang ingin kamu tampilkan rumahnya seperti itu. Maka dari itu, untuk melihat tampilan denah rumahnya, kamu bisa cek selengkapnya di bawah ini, yaitu :
Rumah 9×12 yang memanjang ke samping

Seperti halnya pada pembahasan sebelumnya, bahwa dengan konsep denah rumah yang memanjang ke samping ini bisa kamu manfaatkan untuk tampilan rumah yang modern dan mewah. Kamu bisa membuat garasi mobil di halaman depan, menambahkan ruang tamu, keluarga, dan bersantai. Serta, bisa kamu juga membuat kamar tidur yang berjumlah 2 kamar hingga 4 kamar. Bagaimana menurut kamu ?
Ukuran 9×12 untuk denah rumah memanjang ke samping yang modern

Bangunan dengan konsep seperti ini dapat dimanfaatkan untuk membuat beberapa ruangan dengan ukuran yang luas. Bisa saja untuk membuat kamar tidur utama dengan ukuran yang luas, serta ruang keluarga yang juga menjadi ciri khas tersendiri jika mempunyai ukuran yang luas serta dengan tampilan yang modern. Oleh sebab itu, pikirkan dulu ya beberapa ruangan yang menurut kamu cocok untuk terlihat luas, jangan sampai menyesal memilih ruangan yang luas namun tidak berfungsi sebagaimana mestinya. Paham sampai sini ?
Denah rumah 3 kamar tidur di ukuran 9×12
Sebelumnya, ada 4 kamar yang dapat dibuat di dalam rumah yang sedang kamu bangun. Namun, jika kebutuhan kamu hanya untuk membuat 3 kamar tidur saja, tentunya tidak apa-apa dan sisa luas tanahnya bisa dimanfaatkan untuk membuat ruangan lain menjadi luas atau yang lainnya. Nah, bagaimana sih denah rumah dengan 3 kamar tidur ini, berikut gambar yang bisa kamu lihat pada pembahasan di bawah ini, yaitu :
Rumah dengan ukuran 9×12 dan 3 kamar tidur

Buatlah jumlah kamar tidur yang sesuai dengan kebutuhan kamu. 3 kamar tidur ini bisa kamu manfaatkan sebagai kamar tidur utama dengan kamar tidur anak-anak atau kamar tidur untuk tamu. Sama halnya dengan pembahasan di atas mengenai ruangan kamar tidur ini, hanya mengalih fungsikan ruangan kamar tersebut sesuai dengan kebuthuannya masing-masing.
Denah yang bagus

Dengan denah rumah yang bagus, tentunya kamu dapat memanfaatkan 3 kamar tidur tersebut menjadi lebih baik lagi. Bisa saja, kamu membuat hingga 4 kamar tidur sekaligus, namun balik lagi untuk melihat kebutuhan yang kamu miliki. Makanya, sebelum membuat ruangan ini, bisa kamu sesuaikan dulu dengan kebutuhan yang kamu miliki, jika sudah bisa saja sisa luas tanahnya dapat dimanfaatkan untuk memperluas ruangan yang lainnya atau membangun taman mini di area rumah tersebut. Apakah kamu setuju ?
Rumah dengan ukuran 9×12 untuk denah 2 lantai
Kalau kamu ingin membuat denah rumah dengan 2 lantai, kamu bisa coba nih beberapa gambar yang dapat kamu jadikan referensi dalam proses pembangunan rumah tersebut. Berikut gambar denah rumah yang dapat kamu lihat di bawah ini, yaitu :
Denah rumah 2 lantai 9×12

Untuk lantai 1, kamu dapat membuat bermacam-macam ruangan yang seperti biasanya untuk rumah-rumah secara umum. Seperti ruang tamu, teras, garasi, ruang keluarga, kamar mandi, kamar tidur, dapur, dan berbagai macam ruangan lainnya sesuai dengan keinginan kamu. Nah, kalau untuk membuat denah rumah untuk lantai 2 tersebut, bisa kamu buat beberapa ruangan yang seperti biasanya, seperti kamar tidur, kamar mandi, balkon, dan juga ruangan untuk bersanti.
Rumah 2 lantai pasti terlihat modern

Tentunya, jika rumah kamu memiliki 2 lantai pasti akan terlihat modern dan mewah. Apalagi jika isi rumah tersebut terlihat sangat rapih dan menarik, kamu juga bisa membuat berbagai ruangan yang ada di dalam rumah tersebut sesuai dengan keinginan kamu, serta untuk lantai 2nya juga bisa kamu sesuaikan saja dengan apa yang kamu inginkan. Supaya apa ? Supaya ekspetasi kamu terlihat lebih nyata dan juga menghasilkan tampilan dari rumah tersebut terlihat modern.
Rumah dengan denah 9×12 untuk 4 kamar tidur
Sama halnya dengan pembahasan yang pertama, untuk pembahasan kali ini hanya merujuk ke kamar tidur saja. Untuk tampilan denahnya, kamu bisa lihat pada gambar di bawah ini, yaitu :
4 kamar tidur di rumah 9×12

Rumah dengan 4 kamar tidur tentunya terlihat sangat menarik. Apalagi jika rumah tersebut berukuran sangat luas dan megah, hal yang tidak mungkin seperti membuat 4 kamar tidur sekaligus pasti akan dibuatnya. Dengan 4 kamar tidur itu, kamu bisa menambahkan juga beberapa ruangan yang siap untuk digunakan, seperti ruang tamu, keluarga, dan sebagainya. Berikan juga beberapa space kosong untuk membuat halaman teras, taman mini, atau tempat untuk bersantai lainnya.
4 kamar tidur dan garasi mobil

Nah, untuk memanfaatkan hal yang dalam mempunyai luas rumah yang begitu megah, kamu dapat membuat 4 kamar tidur dan juga garasi yang muat untuk 2 mobil sekaligus. Pada akhirnya, denah rumah seperti ini menjadi pilihan tepat kalau kamu mempunyai budget yang fantastis dan desain yang sesuai dengan kebutuhan kamu, sehingga dapat membuat rumah dengan bangunan yang menarik dan modern.
Harga desain denah rumah yang terjangkau
Di Mirach Interior, kamu juga bisa membuat sebuah desain untuk denah rumah yang sesuai dengan keinginan kamu. Karena, kami juga sudah bekerja sama oleh orang kontruksi yang sudah sangat ahli dan profesional di dalam bidang rumah seperti ini. Tak tanggung-tanggung, kami juga bisa membuat denah untuk kantor, apartement, kost-kostan, ruko, dan lainnya. Tetapi, ada beberapa cara yang dapat dilakukan untuk pembuatan desain seperti ini, yaitu dengan menggambarnya di atas kertas dan menggunakan alat tulis seperti pensil atau pulpen, sedangkan ada juga yang membuat desainnya secara digital dengan tampilan 2D atau 3D.
Nah, dengan kedua cara tersebut, pastinya memiliki harga yang berbeda jauh dan bervariasi. Biasanya, harga di hitung dari permeter ukuran yang dibutuhkan atau 1 ruangan yang dapat di hitung harganya sesuai standar desain masing-masing orang. Kalau kamu penasaran bagaimana harga desain untuk denah seperti ini di Mirach Interior, kamu bisa hubungi kami melalui WhatsApp dan bisa cek juga di instagram @mirachinterior. Referensi lainnya dalam mencari denah rumah yang dapat kamu lihat pada pembahasan berikut ini, yaitu denah rumah minimalis dan denah rumah sederhana. Terimakasih.





