Denah rumah 6×8 3 kamar – Pada masa pendemi ini, tak banyak orang-orang yang membangun atau membeli rumah dengan ukuran yang bermacam-macam sesuai dengan kemampuannya. Misalnya rumah dengan ukuran 6×8 yang tampak minimalis dari ukuran yang kecil ini. Sebelum membangun atau membeli rumah tersebut, kamu harus tahu dulu denah rumahnya apa saja yang akan dibuat di dalam bangunan tersebut. Denah rumah ini berfungsi sebagai informasi untuk menentukan tata letak sebuah ruangan atau barang interior yang nantinya akan kamu gunakan.
Pada pembahasan kali ini, kamu akan mengetahui denah rumah 6×8 yang menggunakan 3 kamar di dalamnya. Penggunaan 3 kamar ini tentunya berfungsi untuk membagi kamar antara kamar utama, kamar anak-anak, kamar tamu, atau kamar pembantu. Kamu bisa tentukan sendiri kamar apa saja yang akan digunakan nantinya, jadi itulah fungsi dari denah rumah sebenarnya. Namun, di zaman modern seperti ini sudah dilakukan perkembangan yang lebih baik dan efisien lagi, jadi kamu bisa membuat denah rumahnya dengan tampilan 3D serta kamu bisa mengetahui/membuat barang interior kamu nantinya akan diletakkan seperti apa posisinya. Penasaran desain denahnya seperti apa ? Jadi, simak pembahasan ini sampai habis ya !
Denah 3 kamar untuk rumah 1 lantai

Desain yang pertama yaitu menampilkan denah rumah dengan 3 kamar yang dibuat untuk rumah berlantai 1. Rumah berlantai 1 ini dengan ukuran 6×8 tentunya bisa sangat luas, jadi dapat memanfaatkannya untuk membuat 3 kamar sekaligus. Selain itu, kamu bisa membuat teras rumahnya juga terlihat luas, bisa kamu manfaatkan juga untuk menjadi garasi kendaraan sekalian supaya tidak memakan ukuran tanah yang lebih besar jika ingin membuat garasi seutuhnya.
Denah rumah untuk 2 lantai ukuran 6×8

Selanjutnya, untuk membuat rumah yang mempunyai 2 lantai. Kamu bisa menggunakan denahnya seperti pada gambar di atas ini, sangat cocok untuk rumah yang mempunyai ukuran 6×8. Di dalam rumahnya tersebut, kamu bisa membuat 3 kamar sekaligus, misalnya di lantai 1 untuk kamar tidur utama dan 2 kamar tidur di lantai atas. Kalau kamu mempunyai budget yang banyak, kamu bisa membangun/memilih rumah yang mempunyai 2 tingkat seperti ini, agar terlihat modern dan minimalis.
Denah rumah dari desain 3D

Lalu, kalau kamu ingin menampilkan denah rumah dengan desain 3D, tentunya kamu bisa membuatnya. Kamu tentukan dahulu ruangan apa saja yang ingin dibuat nantinya. Misalnya ingin membuat 3 kamar tidur, ruang tamu, ruang keluarga, dapur, dan kamar mandi. Jadi, setelah kamu tentukan ruangannya, kamu bisa mulai membuatnya dengan software pendukung untuk membuat desain denah rumah seperti ini, contohnya Autocad dan Sketchup. Namun, kalau kamu tidak bisa membuatnya, kamu bisa pesan melalui jasa desain interior.
Denah yang ada 3 kamar dan teras

Kalau kamu ingin membuat teras rumah dengan nuansa yang indah dan rapih, kamu bisa coba nih menggunakan denah seperti di atas. Tak hanya untuk membuat teras saja, melainkan juga bisa untuk membuat 3 kamar sekaligus di dalam bangunan rumahnya. Di dalam 3 kamar tersebut, kamu bisa gambar barang interior yang akan digunakan seperti tempat tidur, meja tv, lemari, dan sebagainya. Di bagian terasnya juga, kamu bisa tambahkan sofa, meja, dan tanaman hias di sekelilingnya.
Desain denah untuk rumah yang kecil

Walaupun rumah kamu berukuran 6×8 dan terlihat kecil, kamu bisa memanfaatkannya untuk membangun rumahnya menjadi berlantai 2. Selain itu, di dalam bangunan rumah tersebut seperti biasa kamu bisa buat 3 kamar untuk kamar utama dan kamar anak-anak. Bagi kamu yang ingin membuat tempat untuk bersantai, kamu bisa membuatnya di dalam kamar utama yang di mana di kamar tersebut ada tv untuk bersantai sambil bermain gim serta menonton serial Netflix. Bagaimana menurut kamu ?
Model denah rumah 6×8 dengan 3 kamar tidur

Bila ingin membuat 3 kamar tidur untuk rumah berukuran 6×8, kamu bisa membuatnya. Tetapi… kamu harus perhitungkan dulu ukuran yang pas dan sesuai agar ruangan yang lainnya bisa kamu buat di dalam rumah tersebut. Ruangan lain itu antara lain ruang tamu, ruang keluarga, kamar mandi, dan dapur. Untuk menambah tampilan rumah yang bagus, bisa saja untuk membuat garasi, teras, kebun kecil, dan sebagainya. Jadi, kamu harus pikirkan dahulu ukuran yang pas dan sesuai untuk membuat 3 kamar tersebut.
Rumah dengan denah yang panjang ke samping

Denah seperti ini tentunya akan membuat rumah kamu terlihat luas dari tampak depan. Namun, jika akan masuk ke dalamnya, kamu bisa lihat bahwa ruangannya akan memanjang ke bagian samping. Selain itu, bisa juga dimanfaatkan untuk membuat 3 kamar tidur di dalamnya supaya terlihat mewah dan modern. Dengan adanya 3 kamar tidur tersebut, pastinya akan membuat kamu juga merasa nyaman.
Denah rumah 6×8 3 kamar yang terlihat minimalis

Menampilkan kesan yang minimalis menjadi salah satu perbedaan yang menarik untuk dibuat. Dengan nuansa minimalis, rumah kamu terkesan seperti pada zaman modern. Denah rumah yang dibangun pun juga mendukung nuansa minimalis. Misalnya di dalam denah tersebut, kamu ingin menggunakan cat dinding yang berwarna putih atau warna lainnya. Selain itu, penggunaan barang interior juga dapat mempengaruhi hal tersebut. Supaya sesuai ekspetasi, kamu perlu mencari tahu dahulu barang interior apa saja yang cocok untuk digunakan agar terlihat minimalis.
Desain untuk rumah 3 kamar

Desain rumah yang memiliki 3 kamar seperti ini bisa menjadi pilihan tepat. Apalagi kalau kamu sudah mempunyai anak, tentunya antara orang tua dan anak harus mempunyai privasi sendiri-sendiri. Dengan membuat 3 kamar, kamu bisa membuat kamar utamanya di bagian timur, sedangkan untuk 2 kamar anak-anaknya bisa di bagian barat atau selatan. Buatlah juga kamar mandi di antara kamar utama dan kamar anak, supaya tidak terlalu jauh ketika ingin buang air kecil atau besar.
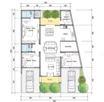
Desain untuk rumah ukuran 6×8 yang mempunyai 3 kamar tidur

Terakhir, desain seperti ini bisa menjadi salah satu pilihan menarik. Walaupun kamu membuat 3 kamar tidur, tentunya kamu bisa membuat garasi kendaraan yang mampu menampung 2 mobil sekaligus. Tetapi, kamu harus merelakan beberapa ukuran untuk ruangan yang berada di dalam rumah menjadi kecil. Nah, kalau desain denah rumahnya seperti ini, apakah kamu setuju untuk membuatnya ?
Tentu saja, untuk mencari denah yang pas bagi rumah idaman kamu adalah hal yang sulit. Oleh sebab itu, kalau kamu masih kurang lengkap mengenai denah rumah ini, kamu bisa simak pembahasan berikut :
Denah rumah minimalis | Denah rumah minimalis 3 kamar | Denah rumah 2 kamar ukuran 7×9 | Denah rumah 4 kamar 1 mushola
Lebih mudahnya, kamu bisa scroll ke bagian bawah artikel ini yang nantinya akan menunjukkan related post untuk denah rumah yang sudah di bahas sebelumnya. Untuk kamu yang penasaran mengenai desain interior 3D tadi, kamu bisa hubungi tim kami melalui WhatsApp, serta kamu bisa juga lihat hasil desain interior 3D-nya dengan cara follow instagram @mirachinterior. Terima kasih.





