[quads id=1]

Denah Rumah 2 Kamar Ukuran 7×9

banner denah rumah 2 kamar ukuran 7x9

Denah rumah 2 kamar ukuran 7×9 – Kalau kamu mempunyai ukuran rumah 7×9 dan ingin membuat denah untuk 2 kamar, kamu bisa simak pembahasan ini sampai habis. Pada pembahasan kali ini, kita akan mengetahui beberapa pembahasan mengenai denah rumah dengan 2 kamar yang cocok. Selain itu, tak hanya untuk 2 kamar saja, melainkan ada yang membuat denahnya untuk 3 hingga 4 kamar. Selanjutnya, kamu akan mengetahui beberapa model dari denah rumah yang berlantai 2 atau hanya lantai 1 saja.

Nah, bagaimana sih denah rumah 2 kamar ukuran 7×9 yang bisa kamu jadikan referensi terbaik ? Kamu bisa lihat gambar dan deskripsi pada pembahasan di bawah ini. Cekidot !

Denah rumah ukuran 7×9 2 kamar tidur

Pertama, sesuai dengan pembahasan yang kita inginkan, yaitu sebuah denah rumah untuk 2 kamar tidur dengan ukuran 7×9. Nah, apa saja sih model denah rumah tersebut yang bisa kita lihat ? Berikut gambar denah rumah yang dapat kamu jadikan referensi, yaitu :

2 kamar tidur di rumah 7×9

denah rumah 7x9 2 kamar tidur
Gambar denah rumah 7×9 2 kamar tidur

Memiliki 2 kamar tidur di rumah ukuran 7×9 bisa kamu manfaatkan lebih baik lagi dalam pembuatan kamarnya. Biasanya, dengan memiliki 2 kamar tersebut kamu bisa manfaatkan untuk kamar tidur utama dan kamar tidur untuk anak-anak atau tamu. Menentukan kamar tersebut sesuai dengan fungsi atau kebutuhan yang kamu miliki. Jangan sampai membuat kamar tidur dengan kapasitas yang lebih banyak, namun orang-orang yang berada di rumah kamu itu sedikit.

Rumah 7×9 1 lantai dengan 2 kamar tidur

denah rumah 7x9 2 kamar tidur 1 lantai
Gambar denah rumah 7×9 2 kamar tidur 1 lantai

Kamu juga bisa membuat denah rumah tersebut untuk 2 kamar tidurnya yang berada di lantai 1 saja, kecuali kamu mempunyai budget yang fantastis bisa membuat rumah dengan berlantai 2. Selain itu, memiliki 2 kamar tidur yang ukurannya sesuai dengan kebutuhan kita, membuat kita terasa nyaman. Selanjutnya, untuk sekat batas dindingnya bisa menggunakan tembok yang di tengah-tengahnya bisa kamu buat toilet atau kamar mandi. Apakah kamu tertarik ?

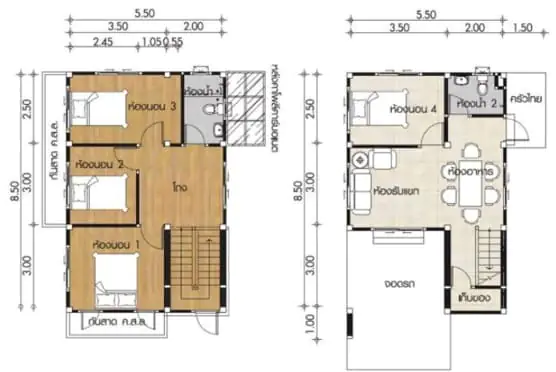
Model ukuran rumah 7×9 dengan 3 kamar di lantai 2

Memiliki 3 kamar untuk rumah dengan ukuran 7×9 juga sah-sah saja, apalagi jika ruangan kamarnya bisa kamu tampilkan secara minimalis. Untuk lebih lengkapnya mengenai tampilan kamar yang minimalis, kamu bisa coba cek di dekorasi kamar minimalis. Ngomong-ngomong, untuk tampilan denah rumahnya kamu bisa cek pada gambar di bawah ini ya !

Rumah 2 lantai ukuran 7×9 dengan 3 kamar

denah rumah 3 kamar ukuran 7x9 2 lantai
Gambar denah rumah 3 kamar ukuran 7×9 2 lantai

Jika kamu mempunyai budget yang fantastis, kamu bisa membuat rumah dengan ukuran 7×9 tersebut bertingkat 2. Dengan isinya di lantai 1 untuk ruangan utama saja, seperti tempat tidur utama, ruang tamu, dapur, dan teras-teras di halaman depan. Sedangkan, untuk bagian lantai 2nya, kamu bisa juga menambahkan kamar tidur lagi, yang juga ada beberapa ruangan lainnya seperti ruang keluarga, kamar mandi, balkon, dan dapur mini.

denah rumah 3 kamar ukuran 7x9 2 lantai bagus
Gambar denah rumah 3 kamar ukuran 7×9 2 lantai bagus

Selanjutnya, untuk kamu yang juga ingin membuat 3 kamar dengan rumah berukuran 7×9 ini, bisa juga ternyata hehe. Hampir sama seperti pada gambar sebelumnya, untuk denah rumah ini bisa kamu buat ketiga kamar tidur tersebut berada di lantai 1. Sedangkan, untuk di lantai 2 juga bisa kamu menambahkan kamar tidur mini dengan mushola, ruang mencuci, balkon, dan sebagainya sesuai dengan keinginan kamu.

Desain rumah 2 kamar ukuran 7×9

Ada lagi desain rumah 2 kamar dengan ukuran 7×9 yang bisa kamu jadikan referensi. Kamu bisa lihat gambarnya di bawah ini, yaitu sebagai berikut :

Desain rumah ukuran 7×9 dan 2 kamar serta ruang keluarga

desain rumah 2 kamar ukuran 7x9
Gambar desain rumah 2 kamar ukuran 7×9

Bisa juga kamu membuat 2 kamar pada rumah yang hanya berlantai 1 saja. Namun, di dalam rumah tersebut juga bisa kamu membuat beberapa ruangan lainnya, seperti ruang keluarga yang memiliki luas ruangan yang lumayan besar. Nah, untuk membuat 2 kamar tidurnya tadi, kamu bisa mengarahkan pintu kamarnya yang langsung ke ruang keluarga supaya terlihat lebih nyaman dan aman. Jadi, kamu juga tidak bingung ketika ingin beraktifitas di ruang keluarga karena dekat dengan kamar tidurnya.

Rumah 7×9 dengan desain rumah 2 kamar

desain 2 kamar untuk rumah 7x9
Gambar desain 2 kamar untuk rumah 7×9

Selanjutnya, untuk desain denah rumah seperti ini bisa kamu terapkan. Namun, kamu harus mencari tahu dahulu ukruan yang pas untuk pembuatan 2 kamarnya supaya rumah kamu tidak begitu sempit. Kamu bisa meletakkan kamar mandi atau toilet di antara kamar tidur utama dengan kamar tidur lainnya, supaya kamu juga tidak berjalan jauh ketika ingin ke toilet atau kamar mandi.

Denah rumah 2 kamar ukuran 7×9 modern dan sederhana

Mempunyai beberapa denah rumah dengan 2 kamar tidur yang memiliki ukuran 7×9, serta tampilan kamar yang modern atau sederhana. Kamu bisa lihat gambar dan deskripsinya di bawah ini, yaitu :

Modern

denah rumah 2 kamar ukuran 7x9 modern
Gambar denah rumah 2 kamar ukuran 7×9 modern

Rumah yang modern juga adalah idaman setiap orang pada zaman sekarang, karena dengan memiliki rumah yang moden akan terlihat lebih menarik dan mengikuti perkembangan zaman. Pada saat itulah, kamu bisa memanfaatkan ruangan kamar tidurnya untuk 2 kamar saja, seolah-olah menjadi minimalis juga. Siapa sih yang tidak mau untuk mempunyai rumah yang modern dan minimalis ? Tentunya semua orang juga mau !

Sederhana

denah rumah 2 kamar ukuran 7x9
Gambar denah rumah 2 kamar ukuran 7×9

Tampilan kamar tidur ini berletakkan pada bagian lantai 2 di sebuah denah rumah. Nah, kalau kamu ingin berniat membuat kamar tidur terebut berada di lantai 2, kamu bisa membuatnya langsung. Tak hanya 2 kamar tidur saja, melainkan 3 kamar tidur sekaligus supaya orang-orang yang ingin beristirahat di rumah kamu akan merasakan kenyamanan yang lebih baik lagi.

Model denah rumah 4 kamar ukuran 7×9

Sebelumnya, kita membahas mengenai denah rumah dengan 2 hingga 3 kamar untuk ukuran rumah 7×9. Nah, ada juga loh yang membuat 4 kamar di dalam denah rumah ini. Penasaran ? Bagaimana denah rumah yang cocok untuk 4 kamar ini ? Mari kita lihat beberapa gambar denah di bawah ini, yaitu :

Denah rumah 4 kamar yang untuk ukuran yang luas

denah rumah 4 kamar ukuran 7x9 luas
Gambar denah rumah 4 kamar ukuran 7×9 luas

Jika kamu ingin mempunyai 4 kamar di dalam rumah berukuran 7×9, tentunya sangat bisa kamu buat dengan berbagai macam denah yang sesuai dengan keinginan kamu. Seperti contoh gambar di atas, denah rumah ini memiliki 4 kamar yang dimana salah satu dari 4 kamar tersebut untuk kamar utamanya. Nah, berbagai macam ruangan kamar tersebut memiliki arah pintu yang berbeda, seperti ada yang mengarah langsung ke ruang keluarga, bahkan ada yang mengarah langsung ke toilet atau kamar mandi.

Minimalis

denah rumah 4 kamar ukuran 7x9
Gambar denah rumah 4 kamar ukuran 7×9

Denah kamar yang minimalis menjadi pilihan orang-orang karena memiliki tampilan yang menarik perhatian dibandingkan dengan kamar yang biasa-biasa saja. Namun, dengan denah rumah seperti ini, tentunya kamu dapat membuat 4 kamar dengan ukuran yang minimalis dan cukup. Karena, ukuran tanah lainnya bisa kamumanfaatkan untuk membuat kamar mandi, dapur, teras, ruang keluarga, dan ruang tamu. Apakah kamu tertarik ?

Denah rumah ukuran 7×9 untuk 1 lantai saja yang ada 2 kamarnya

denah rumah 2 kamar ukuran 7x9 1 lantai
Gambar denah rumah 2 kamar ukuran 7×9 1 lantai

Untuk denah rumah seperti ini, di wajibkan untuk membuat 2 kamar karena mempunyai seorang anak. Nah, kamar anak ini bisa kamu buat di antara dapur dan juga teras belakang. Namun, untuk pintunya kamu bisa mengarahkannya ke ruangan tengah yang langsung menuju ke toilet. Tak hanya itu juga, untuk kamar utamanya pun sama saja arah pintunya yang langsung ke arah toilet. Bagaimana menurut kamu denah rumah seperti ini ?

Kalau kamu ingin mencari referensi untuk ukuran rumah yang lainnya mengenai denah rumah tersebut, kamu bisa langsung cek pada pembahasan berikut ini :

Denah rumah minimalis | Denah rumah 6×10 | Denah rumah sederhana

Semoga, pembahasan ini dan pembahasan di atas menjadi referensi terbaik kamu dalam mencari informasi mengenai denah rumah 2 kamar ukuran 7×9 ini. Jika ada hal yang ingin ditanyakan lebih detailnya, bisa langsung hubungi kami melalui WhatsApp yang telah disediakan dan jagan lupa follow instagram @mirachinterior ya !. Terimakasih.

Related Posts

Scan the code