Denah pondasi rumah ukuran 7×9 – Bagi kamu yang sedang membangun rumah atau merenovasi rumah yang memiliki ukuran 7×9, kamu bisa mengikuti pembahasan ini sampai habis. Di mana pada pembahasan ini kita akan mengetahui berbagai macam desain mengenai denah pondasi rumah yang berukuran 7×9. Denah rumah ini ada yang terbuat dari kertas, tampilan 2D, atau pun tampilan 3D. Selain itu, denah rumah minimalis biasanya sering kali digunakan pada zaman sekarang, supaya menghasilkan tampilan rumah yang kecil namun terlihat luas.
Adapula dengan berbagai macam type rumah yang saat ini sedang naik daun, seperti rumah type 36 atau rumah type 45. Tentunya, semua aspek dari rumah tersebut memiliki kelebihan dan kekurangan masing-masing, sehingga tidak dapat menjadikan tolak ukur antara rumah yang satu dengan rumah yang lainnya. Oleh sebab itu, untuk pembahasan kali ini akan berfokus mengenai denah pondasi rumah ukuran 7×9 saja. Penasaran ? Mari kita simak pembahasannya sekarang juga.
Bentuk denah pondasi rumah ukuran 7×9

Gambar denah yang pertama memperlihatkan bentuk pondasi rumah yang cocok untuk ukuran 7×9. Denah pondasi rumah ini memfokuskan pada tata letak barang interior dan ruangan yang berada di bangunannya. Misalnya untuk membuat kamar tidur utama dan kamar anak yang bersebelahan, selain itu adanya teras juga dapat membantu kita untuk membuat tempat bersantai ketika malam hari. Bagaimana menurut kamu ?
Denah pondasi rumah ukuran 7×9 1 lantai

Selanjutnya ada denah pondasi rumah dengan ukuran 7×9 yang cocok untuk 1 lantai. Di rumah 1 lantai ini dengan ukuran tanah yang lumayan luas, tentunya kamu dapat membuat garasi di halaman depannya. Selain itu, untuk membuat kamar utamanya pun bisa menggunakan ukuran yang lebih luas atau untuk area dapur dan ruang tamu. Jadi, untuk menggunakan denah pondasi rumah ini, kamu harus tahu dulu ukuran yang pas untuk beberapa ruangan supaya tidak terlihat kecil atau sempit.
Pondasi rumah ukuran 7×9 dengan denah 1 kamar

Bagi kamu yang belum menikah, bisa membangun 1 kamar saja di bangunan rumahnya nanti. Namun dengan pembangunan 1 kamar ini di ukuran rumah 7×9, kamu bisa memanfaatkannya dengan ukuran tanah yang lebar bagi area ruangan lainnya. Misalnya kamu ingin membuat garasi, ruang tamu, ruang keluarga, ruang tv, ruang gym, dapur, dan kamar mandi. Selain itu, sisa tanahnya juga bisa kamu buat kebun mini di area belakang rumah. Apakah kamu tertarik ingin membuatnya ?
Gambar denah pondasi rumah ukuran 7×9 2 kamar

Lalu ada juga denah pondasi rumah yang membuat 2 kamar di dalam bangunan tempat tinggalnya. Dengan 2 kamar ini kamu bisa memanfaatkannya menjadi kamar tidur utama dan kamar tidur anak. Namun, jika kamu pengantin baru, kamu bisa memanfaatkan kamar tidur lainnya menjadi kamar tidur tamu atau kamar tidur pembantu nantinya. Jadi, untuk rumah berukuran 7×9 ini juga sangat memungkinkan untuk membuat 2 kamar tidur di dalamnya.
Denah pondasi rumah 3 kamar ukuran 7×9

Sebelumnya ada yang menggunakan 1 kamar tidur dan 2 kamar tidur di rumah berukuran 7×9. Rumah ukuran 7×9 ini tentunya sangat luas, jadi kamu bisa memanfaatkannya untuk membangun 3 kamar tidur. 3 kamar tidur ini bisa kamu gunakan untuk kamar tidur utama, kamar tidur anak, dan kamar tidur tamu. Namun, jika kamu ingin anaknya nanti memiliki kamar tidur sendiri, kamu bisa menjadikannya 1 kamar tidur utama dan 2 kamar tidur anak aesthetic.
Denah pondasi rumah dengan garasi di ukuran 7×9

Pondasi rumah juga perlu adanya garasi untuk memudahkan dalam parkir kendaraan beroda empat atau beroda dua. Dengan adanya garasi di rumah berukuran 7×9 ini, tentunya kamu dapat membuatnya namun tidak banyak luas tanah yang akan di ambil. Karena ukuran tanahnya yang luas, kamu bisa memanfaatkannya lagi untuk membuat teras dan kebun mini di area halaman depan rumahnya atau di area belakang rumah.
Denah pondasi yang modern ukuran 7×9

Bagi generasi milenial hingga generasi y, tentunya rumah dengan nuansa yang modern bisa menjadi pilihan utama. Apalagi pada saat ini banyaknya bahan material yang dapat mendukung tampilan rumah modern. Namun, untuk denahnya sendiri juga kamu tidak perlu pusing-pusing, walaupun ukuran tanah kamu kecil, kamu tetap mendapatkan hasil yang maksimal bagi rumah yang ingin ditampilkan agar terlihat modern. Kamu bisa memilih cat temboknya seperti apa, penggunaan besi hollow, pemilihan barang interior, dan sebagainya.
Desain denah pondasi rumah ukuran 7×9 dengan tampaknya

Ketika kita bingung membuat denah pondasi rumah dengan tampilan depannya seperti apa. Kamu bisa coba nih menggunakan gambar seperti di atas ini. Denah pondasi rumah yang berukuran 7×9 tentunya juga sangat cocok untuk menampilkan kesan yang klasik ataupun modern. Jadi, untuk masalah tampilan depan rumahnya nanti, sesuaikan saja dengan selera.
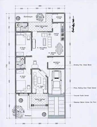
Denah pondasi rumah ukuran 7×9 yang lengkap dan detail

Selanjutnya ada denah rumah ukuran 7×9 yang lengkap dan detail. Kenapa bisa di bilang seperti itu ? Kamu lihat sendiri, peletakkan barang interior yang rapih, pembagian ruangan dengan ukuran yang jelas di sampingnya, serta adanya note bagi ukuran-ukuran tertentu di berbagai ruangan. Tentunya, ini sangat memudahkan bagi para vendor atau mandor ketika ingin membangun atau merenovasi rumahnya.
Denah pondasi rumah minimalis

Ada juga untuk pondasi rumah dengan tampilan minimalis. Biasanya ukuran 7×9 ini tidak bisa terlihat minimalis rumahnya karena akan terlihat lebih megah dan mewah. Namun itu tidak masalah, karena menampilkan kesan yang seperti itu adalah idaman setiap orang. jadi kamu dapat membuat denah rumahnya menjadi berbeda dengan yang lain ya !
Buat denah pondasi rumah dari kertas

Serta yang terakhir, ada denah rumah yang terbuat dari kertas. Walaupun sederhana tentunya hasil yang diperlihatkan sangat jelas untuk digunakan. Tentunya dengan pembuatan denah rumah dari kertas ini tidak mengeluarkan budget yang banyak, ketimbang memesan jasa desain rumah atau jasa desain interior yang harganya mencapai 1 juta rupiah. Bagaimana menurut kamu ?
Jadi, untuk mendapatkan denah pondasi yang bagus untuk rumah idaman kamu, kamu bisa mencari referensi lainnya supaya terlihat lebih meyakinkan, melalui artikel berikut ini :
Denah rumah sederhana | Denah rumah 4 kamar 1 mushola | Denah rumah 2 lantai 3d
Adapun kamu bisa melihat artikel mengenai denah rumah ini dengan melakukan scroll ke bawah, sehingga mendapatkan artikel related post. Kamu bisa mencarinya di situ.
Bagi kamu yang ingin mendapatkan konsultasi gratis mengenai barang interior, desain ruangan maupun rumah. Kamu bisa hubungi kami melalui WhatsApp atau follow instagram @mirachinterior. Konsultasi ini tidak di pungut biaya apapun ya ! Jadi jangan sampai ketinggalan ! Hubungi kami sekarang juga !





