Denah kantor – Sebelum membangun kantor, tentunya harus tahu dulu bagaimana denah yang akan di bangun. Apalagi jika menginginkan kantor dengan bertingkat, seperti bertingkat 2 hingga tingkat 3. Tentunya, harus mencari denah yang sesuai dan pas untuk ruangan tersebut. Nah, di kantor ini biasanya harus ada ruangan khusus yang di isi oleh para petinggi yang ada di perusahaan atau yang lainnya. Seperti direktur, kepala sekolah, kepala desa, dan sebagainya.
Bagaimana sih cara pemetaan denahnya untuk membuat kantor ini ? Ya, tentunya dalam membuat denah tersebut memiliki ketelitian yang ekstra, serta pengetahuan yang lebih mengenai kontruksi dan ukuran yang akan dibuat nantinya. Maka dari itu, pada pembahasan kali ini kita akan mengetahui saja beberapa model denah kantor yang dapat kamu jadikan referensi. Mari kita simak sampai habis ya !
Model denah kantor 2 lantai
Yang pertama, ada model untuk denah kantor dengan 2 lantai. Nah, kalau kamu sedang mencari denah seperti ini, kamu bisa lihat deksripsi gambarnya di bawah ini, yaitu :
Contoh denah lantai 1 dan lantai 2

Untuk bagian lantai 1, kamu bisa memanfaatkan untuk membuat ruangan-ruangan yang secara umum dapat di akses oleh siapapun. Contohnya seperti pada gambar di atas, yaitu ada ruangan perdata, ruang sidang, dan sebagainya. Kamu bisa mengakses ruangan tersebut tanpa harus lebih ke lantai atasnya.

Nah untuk lantai 2, kamu bisa memanfaatkan ruangannya sebagai tempat para pekerja karyawannya dengan berbeda-beda ruangan, namun di isi oleh banyak orang di lantai 2 ini. Tambahkan juga mushola dan kamar mandi, supaya lebih nyaman ketika berada di lantai 2 ini.
Contoh lain untuk gambar denahnya

Hampir sama dengan pembahasan sebelumnya, untuk di bagian lantai 1 itu berfungsi sebagai tempat yang dapat di akses oleh siapapun. Sedangkan, untuk bagian lantai 2 di khsusukan untuk orang-orang yang bekerja secara cepat, tepat, dan teliti. Karena, di lantai 2 ini dibutuhkan konsentrasi yang hebat daripada di bagian lantai 1. Apakah kamu setuju dengan contoh denah kantor seperti ini ?
Denah kantor minimalis dan modern
Selanjutnya, ada contoh untuk tampilan kantor dengan denah yang minimalis dan modern. Pada zaman sekarang, kantor-kantor dengan tampilan seperti ini menjadi pilihan utama untuk kaula muda atau kaum milenial. Nah, bagaimana sih caranya membuat kantor yang minimalis dan modern. Kamu bisa cek denahnya pada gambar di bawah ini :
Minimalis

Tampilan kantor yang minimalis, tentunya harus sesuai dengan ukuran ruangan yang diminta. Sehingga, ruangan kantor tersebut terlihat minimalis. Oleh sebab itu, kamu bisa merapihkan ruangan kantornya dengan menggunakan meja berukuran panjang yang dapat menampung hingga 8 hingga 10 orang di meja tersebut. Kamu juga sudah tahu bagaimana tata letak meja panjang tersebut, sehingga bisa langsung di praktekan sesuai dengan ukuran yang diinginkan.
Minimalis & modern

Untuk kantor yang hanya ada satu lantai dengan ukuran tanah yang luas. Bisa saja membuat denah kantornya menjadi minimalis dan modern. Kenapa sih harus seperti itu ? Karena, jika lingkungan kerja kita nyaman, tentunya kita akan merasa senang ketika ingin melakukan pekerjaan tersebut. Oleh sebab itu, pilihan mengenai denah yang terlihat minimalis dan modern menjadi sangat baik, serta sering digunakan oleh perusahaan-perusahaan besar.
Contoh kantor untuk denah perusahaan
Lalu, untuk sekelas perusahaan biasanya memiliki ruang lingkup kerja yang luas. Selain itu, pada bagian kantornya juga terdiri dari divisi-divisi yang mempunyai tugasnya masing-masing. Nah, bagaimana sih denah yang benar untuk perusahaan ? Berikut contoh gambarnya yang bisa kamu lihat di bawah ini :
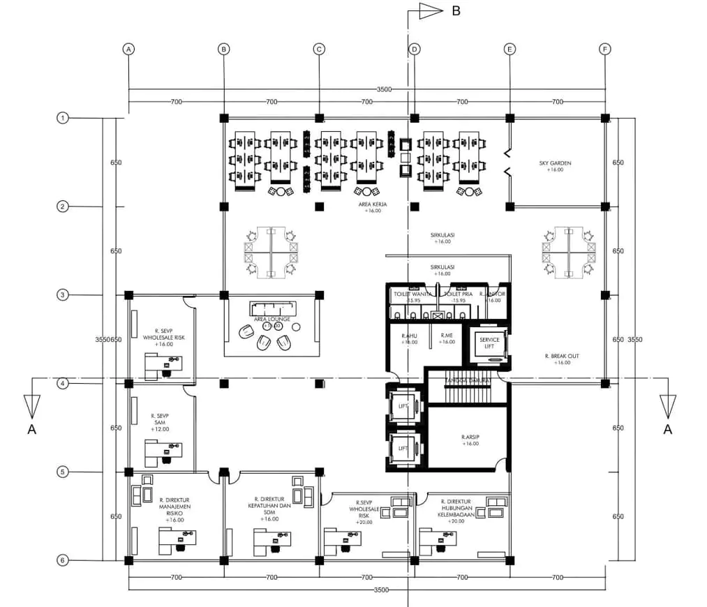
Perusahaan dengan kantor 2 lantai

Perusahaan dengan memiliki kantor yang 2 lantai, bisa memanfaatkan untuk bagian lantai 1 tersebut di tempati oleh ruangan yang cocok pada bagian divisi marketing atau sering ketemu dengan orang banyak / client. Sedangkan, untuk bagian lantai 2, di fokuskan untuk orang-orang yang berada di divisi paling penting dan petinggi perusahaan biasanya berada di ruangan lantai 2. Tambahkan juga kamar mandi dan mushola di setiap lantai ya !
Perusahaan dengan kantor yang kecil

Nah, kalau kantornya memiliki luas tanah yang pas-pasan atau kecil. Kamu bisa membuat beberapa denah kantornya menjadi minimalis dan simple. Biasanya, harus ada ruangan untuk direktur perusahaan, nah untuk karyawannya bisa untuk dibuatkan ruangan khusus sesuai dengan job desk mereka masing-masing supaya tidak saling mengganggu satu sama lain. Tambahkan juga mushola dan kamar mandi ya ! Agar lebih nyaman dan tentram.
Untuk kantor yang menyewa
Lanjut, untuk denah kantor yang di sewa perbulan atau pertahun. Tentunya, kamu bisa memodifikasi atau renovasi kantor tersebut sesuai dengan yang ingin kamu gunakan. Contoh denahnya bisa kamu lihat pada gambar di bawah ini, yaitu :
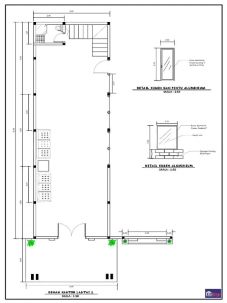
Denah yang sederhana

Bagi kamu yang tidak ingin mempunyai banyak renovasi untuk ruangan kantor yang di sewa, kamu bisa saja membuat tampilan kantor tersebut terlihat sederhana namun masih terasa nyaman. Sesuai dengan deskripsi pada gambar di atas, pada nomor-nomor yang ada pada gambar tersebut memiliki fungsi dari job desk karyawannya sendiri-sendiri.
Ruangan yang ukurannya panjang dan luas

Kalau mendapatkan tempat kantor yang disewakan memiiki ukuran yang panjang dan luas, kamu bisa saja memanfaatkan ruangan tersebut untuk membuat ruangan lainnya yang bisa disekat menggunakan tembok atau gypsum. Dengan cara seperti ini, kamu bisa menambahkan divisi lainnya ke dalam perusahaan kamu supaya perusahaan tetap menjadi yang terbaik.
Denah kantor desa
Untuk denah selanjutnya yaitu untuk kantor desa. Untuk pembuatan kantor desa ini juga harus sangat teliti mengenai ukuran, barang interior, pemilihan bahan material untuk kontruksi, dan sebagainya. Oleh sebab itu, harus dilakukan oleh vendor-vendor ternama yang sudah memiliki pengalaman yang berkualitas. Untuk tampilan denahnya, kamu bisa cek pada gambar di bawah ini, yaitu :
Denah yang rapih dan nyaman

Dengan pembuatan denah seperti ini, tentunya akan merasa nyaman ketika orang-orang yang ingin bekerja di tempat tersebut. Tetapi, tetap harus dipisahkan antara ruangan petinggi dengan jajaran staff kantor desanya. Selain itu, untuk ruang pelayanan masyarakat tentunya harus ada karena menjadi salah satu ruangan yang dimana dapat mempertemukan antara kepala desa dengan masyarakatnya.
Kantor desa yang bagus

Bagaimana sih dengan kantor desa yang bagus ? Gini, untuk membuat kantor desa yang sebagus mungkin itu maksudnya adalah fungsionalitas dari beberapa ruangan yang ada di kantor tersebut memiliki nuansa yang positif. Selain itu, pemilihan barang interior juga sangat berpengaruh untuk menampilkan kantor desa yang terlihat bagus dan rapih.
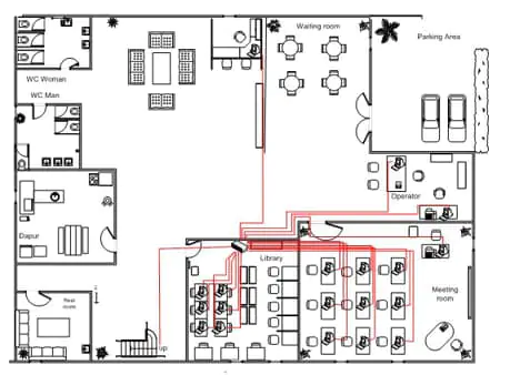
Kantor kecamatan dengan denah yang luas
Dan terakhir yaitu untuk kantor kecamatan dengan ukuran yang luas. Kalau untuk kantor kecamatan, tentunya ita sudah tahu bagaimana luasnya tempat tersebut. Maka dari itu, dibutuhkan untuk ruangan-ruangan yang secara khusus untuk para karyawanannya bekerja sesuai dengan job desk mereka masing-masing. Tambahkan juga beberapa ruangan yang dapat bersantai, rapat, dapur, dan sebagainya.

Hal yang paling penting adalah adanya kamar mandi dan juga mushola yang harus ada di setiap perusahaan, mau itu perusahaan besar atau kecil.
Sekian pembahasan kami mengenai denah kantor yang mulai dari yang memiliki 2 lantai, minimalis dan modern, serta untuk kantor desa hingga kecamatan. Maka dari itu, pemetaan denah ini tidak asal-asalan dan harus dilakukan oleh orang profesional. Untuk kamu yang ingin mencari informasi lebih detail dan lengkap mengenai denah ini, bisa langsung hubungi kami melalui WhatsApp atau follow instagram @mirachinterior. Atau ingin mencari denah lainnya untuk rumah dan sekolah, bisa cek pada pembahasan berikut ini :
Denah rumah minimalis | Denah sekolah | Denah kelas
Terimakasih.





