Denah cafetaria – Dalam membuat sebuah cafe/restoran atau yang namanya cafetaria, tentunya harus dipikirkan dahulu denah yang sesuai dengan ukuran yang ada pada tempat tersebut. Selain itu, jika sudah mengetahui ukuran dari tempat itu, kamu bisa langsung membuat denahnya yang bisa di kertas, desain 2D, atau desain 3D. Cara pembuatan denahnya juga bisa kamu sesuaikan dengan ruangan yang kamu butuhkan, seperti menambahkan ruangan untuk bar, kamar mandi, dapur, mushola, dan sebagainya.
Sesuaikan saja tempat-tempat tersebut dengan apa yang kamu butuhkan. Lalu, pembuatan denah seperti ini bermanfaat juga bagi para pengunjung, vendor kontruksi, dan para pedagang. Maka dari itu, buatlah denah yang sesuai dengan tempat tersebut, serta penjelasan informasi dari denah itu mudah dipahami oleh orang awam sekalipun. Nah, bagaimana sih denah cafetaria yang bisa mudah dipahami oleh orang-orang ? Berikut beberapa model denahnya yang bisa kamu simak sampai habis. Let’s do it !
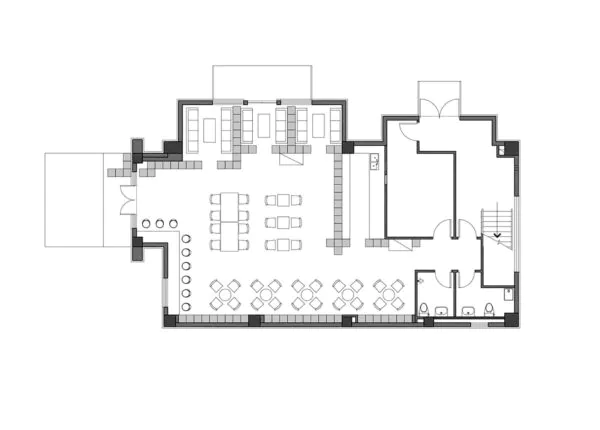
Denah untuk cafetaria yang bagus

Dalam membuat denah yang sesuai, tentunya harus memberikan informasi yang detail dan mudah dipahami oleh orang-orang. Kamu bisa membuat denahnya dengan memberikan nomor-nomor yang mempunyai deskripsinya masing-masing. Contoh, nomor 1 untuk ruangan bar, nomor 2 untuk ruangan kitchen atau dapur, dan seterusnya. Karena dengan cara seperti ini, tentunya lebih bagus dan menjadi denah terbaik.
Denah yang simpel

Kamu juga bisa membuat denahnya terlihat simpel, maksudnya simpel yaitu adanya ruangan-ruangan yang masuk ke dalam denah tersebut dengan fungsionalitas yang pas. Selain itu, jika kamu ingin membuat cafetaria dengan tampilan yang minimalis, biasanya menggunakan denah yang simpel. Namun, kalau kamu ingin membuat denah seperti ini, jangan lupa untuk menambahkan ruangan toilet.
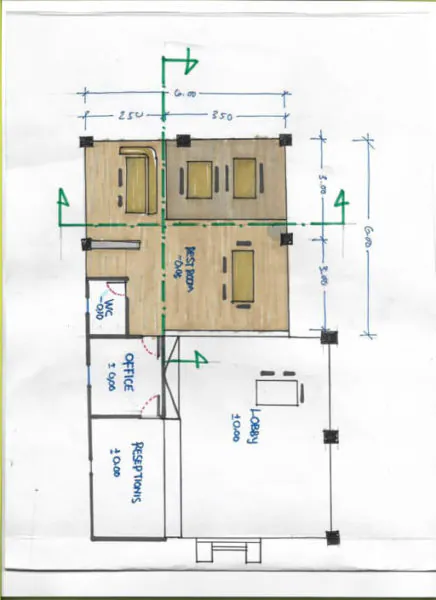
Denah sederhana

Cafetaria dengan denah yang sederhana tentunya sangat berbeda dengan desain yang lain. Namun, hampir sama dengan denah yang simpel, kalau untuk denah yang sederhana seperti ini bisa kamu manfaatkan untuk membuat lobby sebagai tempat duduk dan meja, selain itu kamu juga bisa menambahkan ruangan lainnya. Nah, apakah kamu tertarik dengan denah sederhana seperti ini ?
Cafetaria dengan denah yang modern

Dengan denah yang modern, tentunya menjadi ciri khas yang berbeda daripada contoh denah yang lainnya. Pembuatan denah yang modern ini sangat cocok untuk generasi millenial, selain itu sesuai juga dengan perkembangan desain interior pada zaman sekarang. Karena, dengan denah yang modern kamu bisa selalu mengikuti perkembangan yang ada pada zaman sekarang ini, namun kamu juga bisa memilih desain yang klasik atau lainnya.
Denah yang minimalis untuk cafetaria

Cafetaria dengan denah yang minimalis tentunya menjadi pilihan tepat selain dengan desain yang modern. Di denah minimalis ini, kamu bisa membuat ruangan yang dibutuhkan dengan menggambarkan meja, kursi, dan sebagainya. Dengan denah ruangan seperti ini, tentunya kamu bisa menambahkan barang interior lainnya untuk mempercantik cafetaria tersebut, seperti lampu, lemari, mini bar cafe, dan sebagainya.
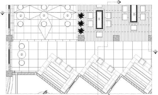
Untuk ukuran cafetaria yang luas

Cara untuk memanfaatkan ukuran tanah yang luas, yaitu membuah denah untuk beberapa ruangan yang dibutuhkan. Seperti coffe bar, juice bar, dapur, toilet, dan sebagainya. Dengan pembuatan ruangan yang seperti ini, dapat mempermudah kamu dalam merapihkan ruangannya, serta para pengunjung juga merasa mudah ketika ingin ke ruangan yang satu dengan ruangan yang lainnya.
Denah untuk di mall

Kalau di dalam mall, tentunya harus mengikuti denah yang sudah ada seperti denah mall tersebut. Selain itu, kamu bisa menambahkan juga beberapa tempat yang khusus untuk cafetaria. Contohnya dengan memberikan stand sesuai dengan merk dagangnya, lalu ada beberapa barang interiornya seperti meja makan, kursi, lampu, dan lain-lain. Dengan pembuatan denah yang ada di mall tentunya jauh lebih susah karena harus se-detail mungkin.
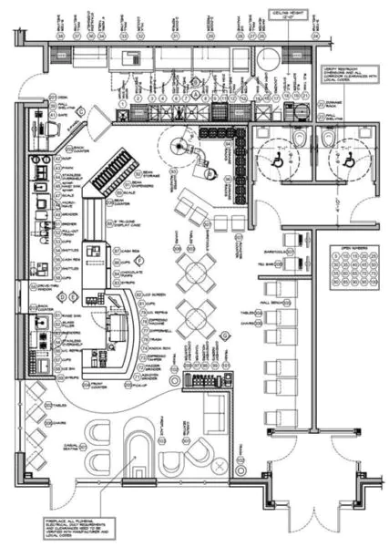
Denah coffee shop

Pada masa pendemi ini, banyak sekali orang-orang yang membuka cafetaria coffee shop loh ! Karena, dengan membuat tempat seperti ini ‘katanya’ lebih menguntungkan dibandingkan dengan membuka dagangan yang lain. Maka dari itu, pembuatan denahnya ini sesuai dengan ukuran luas tanah yang ingin digunakan agar cafetaria tersebut terlihat aesthetic ketika dilihat, serta nyaman ketika ingin bersantai di tempat tersebut.
Denah 3 lantai

Ada beberapa kasus yang ingin membuat cafetaria di ruko, makanya dibutuhkan sebuah desain yang sesuai untuk tempat ini ketika berada di bangunan ruko tersebut. Contohnya dengan ruko bertingkat 3, kamu dapat memanfaatkan seluruh lantainya ini menjadi cafetaria atau ada 1 lantai khusus yang bisa kamu manfaatkan untuk membuat kantor kecil-kecilan. Dengan pembuatan denahnya seperti ini juga akan mempermudah para pengunjung serta staff yang berada di cafetaria tersebut.
Denah 2 lantai cafetaria

Selanjutnya untuk denah yang memiliki 2 lantai. Kamu bisa juga memanfaatkan seluruh lantai tersebut menjadi tempat cafetaria kamu, seperti contohnya untuk bagian lantai 1 bisa dimanfaatkan untuk bagian kasir dan resepsionis. Serta, bisa memberikan meja dan tempat duduk juga. Untuk bagian lantai 2, kamu bisa memanfaatkannya lebih luas lagi untuk para pengunjung yang dapat menggunakan meja dan tempat duduknya. Biasanya, bangunan 2 lantai untuk cafetaria ini berada di ruko. Namun, kamu harus tahu dulu denah ruko 2 lantai terbaik yang bisa dijadikan referensi lainnya.
Manfaat pembuatan denah
Adapun manfaat yang bisa didapatkan ketika ingin membuat denah bangunan ini. Apalagi, kalau tempat ini menjadi ladang bisnis usaha kamu yang baru, sehingga harus memikirkan denah yang sesuai dan pas dengan ekspetasi yang kamu miliki. Maka dari itu, dibuatlah denah cafetaria ini yang memiliki banyak manfaat, yaitu :
- Dapat mempermudah kita untuk melihat ruangan yang digunakan.
- Tata letak dari barang interior, ruangan, dan sebagainya terlihat jelas.
- Mempermudah para pengunjung ketika ingin memasuki tempat tersebut.
Tentunya, masih ada banyak lagi manfaat dari pembuatan denah seperti ini. Kira-kira manfaat apa lagi yang bisa didapatkan dalam pembuatan denah ini ?
Selesai sudah pembahasan kita kali ini yang bisa dijadikan referensi terbaik kamu dalam mencari sebuah desain untuk cafetaria idaman kamu. Oh iya, kalau kamu ingin mencari denah lainnya yang sedang kamu pertimbangkan, kamu bisa cek pada artikel di bawah ini, yaitu :
Denah rumah minimalis | Denah ruang pameran | Denah kantor
Kalau kamu ingin memesan barang interiornya untuk di cafetaria, seperti kitchen set alumunium yang pas untuk di ruang dapur, meja dapur minimalis, mini bar, kursi, dan sebagainya. Kamu bisa hubungi kami melalui WhatsApp atau follow instagram @mirachinterior untuk mencari desain 3D yang real. Terimakasi.





